Skip To Content

46 Stone Mason Way

Huntsville, AL 35806
  • $1,002,893
  • STATUS: Active
  • ON SITE: 33 Days
  • MLS #: 21900929
UPDATED: 12 min ago
$1,002,893
  • 3
    BEDS
  • 0
    ACRES
  • 2
    BATHS
  • 1
    1/2 BATHS
  • 2,507
    SQFT
  • $400
    $/SQFT
Neighborhood:
Type:
Single-Family Home
County:
Area:

School Information

Elementary School:
Middle School:
High School:

Description

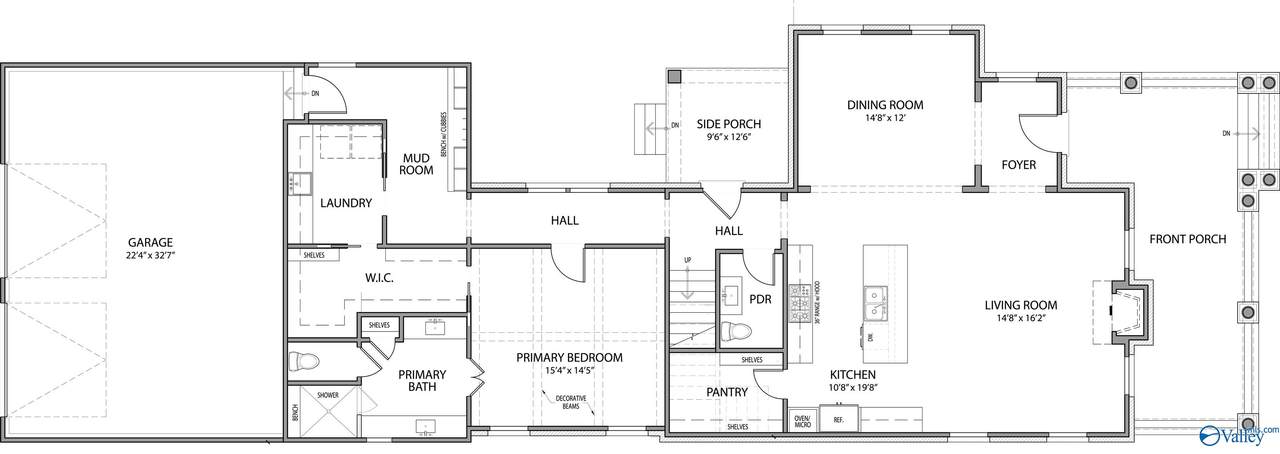
Under Construction-The Piedmont Plan, a historically inspired brick 2-Story Italianate with architectural details like Tuscan Columns, intricate brickwork, & decorative eave brackets sits beautifully on Stone Mason Way. The welcoming front porch & smartly positioned foyer create a lovely transition from the home's entry into the open concept kitchen, living, & dining space. Enjoy designer selected finishes & chef inspired kitchen layout with large walk-in pantry. Main level Primary Suite boost coffered ceilings, separate vanities, oversized tile shower, & incredible closet with direct access to laundry. Other great features include oversized garage, generous mudroom with built-ins, & upstair

Monthly Payment Calculator



ValleyMLS logo © 2025 ValleyMLS. All information provided is deemed reliable but is not guaranteed accurate by the MLS or Blueprint Realty Company and should be independently verified. Listings marked with the ValleyMLS logo are provided courtesy of the ValleyMLS IDX Database. IDX information is provided exclusively for consumers' personal, non-commercial use and may not be used for any purpose other than to identify prospective properties consumers may be interested in purchasing. Data last updated 2025-11-10T18:27:38.28.
www.jasonwill.com/homes/168626293
Print Image

46 Stone Mason Way Huntsville, AL 35806

  • Price: $1,002,893
  • Status: Active
  • On Site: 33 Days
  • Updated: 12 min ago
  • MLS #: 21900929
3
Beds
2
Baths
1
½ Baths
0
Acres
2,507
SQFT
$400
$/SQFT
Neighborhood:
Village Of Providence
County:
Madison
Area:
Madison
Elementary School:
Providence Elementary
Middle School:
Williams
High School:
Columbia High
Property Description
Under Construction-The Piedmont Plan, a historically inspired brick 2-Story Italianate with architectural details like Tuscan Columns, intricate brickwork, & decorative eave brackets sits beautifully on Stone Mason Way. The welcoming front porch & smartly positioned foyer create a lovely transition from the home's entry into the open concept kitchen, living, & dining space. Enjoy designer selected finishes & chef inspired kitchen layout with large walk-in pantry. Main level Primary Suite boost coffered ceilings, separate vanities, oversized tile shower, & incredible closet with direct access to laundry. Other great features include oversized garage, generous mudroom with built-ins, & upstair
Exterior Features

Architectural Style TraditionalOpen Floor Plan Foundation Details Slab Levels Two Parking Features Garage-Two CarGarage-AttachedGarage Door OpenerGarage Faces RearAlley AccessOversized Pool Private YN No

Interior Features

Cooling Central 1Central 2 Cooling YN Yes Fireplace Features Gas LogOne Fireplace YN Yes Fireplaces Total 1 Garage Sqft Dim 691 Heating Central 1Central 2 Heating YN Yes

Property Features

Association Fee 1925 Association Fee Frequency Quarterly Association YN Yes Builder Name BLACK CROW BUILDING CO. Certified Green No City Limits Yes Maintenance Fee No New Construction YN Yes Number Of Units Unit2 2 Number Of Units Unit3 0 Pet Fee OTHER Property Attached YN No Property Condition Under Construction Property Sub Type Single Family Residence Saleor Rent For Sale Sewer Public Sewer Total Exp 808 Water Property No Water Source Public Year Built Renovated 1

Listing provided by Village Of Providence Realty: .


ValleyMLS logo © 2025 ValleyMLS. All information provided is deemed reliable but is not guaranteed accurate by the MLS or Blueprint Realty Company and should be independently verified. Listings marked with the ValleyMLS logo are provided courtesy of the ValleyMLS IDX Database. IDX information is provided exclusively for consumers' personal, non-commercial use and may not be used for any purpose other than to identify prospective properties consumers may be interested in purchasing. Data last updated 2025-11-10T18:27:38.28.
 
https://bt-photos.global.ssl.fastly.net/nalmls/orig_boomver_2_21900929-2.jpg https://bt-photos.global.ssl.fastly.net/nalmls/orig_boomver_2_21900929-2.jpg https://bt-photos.global.ssl.fastly.net/nalmls/orig_boomver_2_21900929-2.jpg
Logo
Blueprint Realty Company
1974 Chandalar Drive, Suite E
Pelham AL, 35214