Skip To Content

57 Stone Mason Way

Huntsville, AL 35806
  • $1,121,031
  • STATUS: Active
  • ON SITE: 34 Days
  • MLS #: 21900923
UPDATED: 187 min ago
$1,121,031
  • 3
    BEDS
  • 0
    ACRES
  • 2
    BATHS
  • 1
    1/2 BATHS
  • 2,948
    SQFT
  • $380
    $/SQFT
Neighborhood:
Type:
Single-Family Home
County:
Area:

School Information

Elementary School:
Middle School:
High School:

Description

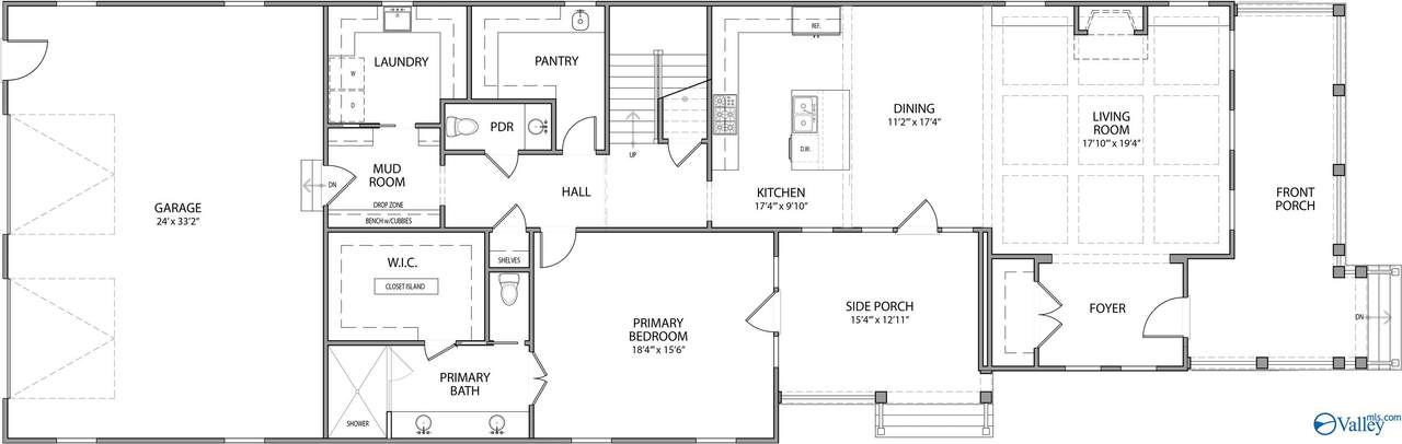
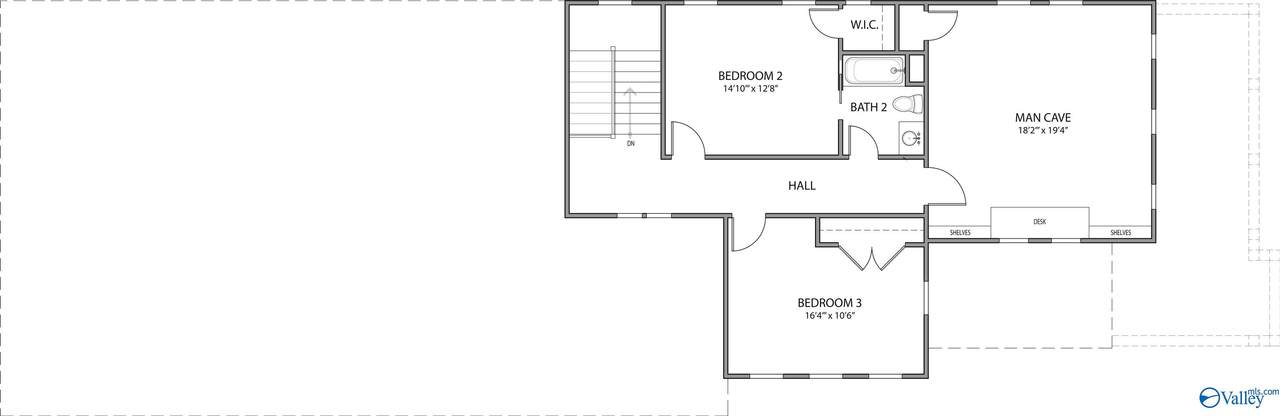
Under Construction-The Collins' showcases classical Italianate flare while utilizing low maintenance finishes like cement siding, composite decking, & raised slab foundation. Special details to include coffered ceilings in Living Room, oversized Dining, incredible Kitchen with 6-burner cooktop, and Working Pantry complete with tons of cabinetry & prep-sink. Primary Suite features large shower, massive closet with 36" central island, & beautiful designer selections. Super-sized Laundry has tons of cabinetry & built-in sink. Mudroom features well-planned built-ins. Don't miss the oversized garage with indoor full size basketball goal! Upstairs, enjoy 2 generous bedrooms & huge Bonus with Desk

Monthly Payment Calculator



ValleyMLS logo © 2025 ValleyMLS. All information provided is deemed reliable but is not guaranteed accurate by the MLS or Blueprint Realty Company and should be independently verified. Listings marked with the ValleyMLS logo are provided courtesy of the ValleyMLS IDX Database. IDX information is provided exclusively for consumers' personal, non-commercial use and may not be used for any purpose other than to identify prospective properties consumers may be interested in purchasing. Data last updated 2025-11-11T00:27:45.987.
www.jasonwill.com/homes/168626289
Print Image

57 Stone Mason Way Huntsville, AL 35806

  • Price: $1,121,031
  • Status: Active
  • On Site: 34 Days
  • Updated: 187 min ago
  • MLS #: 21900923
3
Beds
2
Baths
1
½ Baths
0
Acres
2,948
SQFT
$380
$/SQFT
Neighborhood:
Village Of Providence
County:
Madison
Area:
Madison
Elementary School:
Providence Elementary
Middle School:
Williams
High School:
Columbia High
Property Description
Under Construction-The Collins' showcases classical Italianate flare while utilizing low maintenance finishes like cement siding, composite decking, & raised slab foundation. Special details to include coffered ceilings in Living Room, oversized Dining, incredible Kitchen with 6-burner cooktop, and Working Pantry complete with tons of cabinetry & prep-sink. Primary Suite features large shower, massive closet with 36" central island, & beautiful designer selections. Super-sized Laundry has tons of cabinetry & built-in sink. Mudroom features well-planned built-ins. Don't miss the oversized garage with indoor full size basketball goal! Upstairs, enjoy 2 generous bedrooms & huge Bonus with Desk
Exterior Features

Architectural Style Traditional Foundation Details Slab Levels Two Parking Features Garage-Two CarGarage-AttachedGarage Door OpenerGarage Faces RearAlley AccessOversized Pool Private YN No

Interior Features

Cooling Central 2Central 2+ Cooling YN Yes Fireplace Features One Fireplace YN Yes Fireplaces Total 1 Heating Central 1Central 2 Heating YN Yes

Property Features

Association Fee 1925 Association Fee Frequency Annually Association YN Yes Builder Name BLACK CROW BUILDING CO. Certified Green No City Limits Yes Maintenance Fee No New Construction YN Yes Number Of Units Unit2 2 Number Of Units Unit3 0 Property Attached YN No Property Condition Under Construction Property Sub Type Single Family Residence Saleor Rent For Sale Sewer Public Sewer Total Exp 994 Water Property No Water Source Public Year Built Renovated 1

Listing provided by Village Of Providence Realty: .


ValleyMLS logo © 2025 ValleyMLS. All information provided is deemed reliable but is not guaranteed accurate by the MLS or Blueprint Realty Company and should be independently verified. Listings marked with the ValleyMLS logo are provided courtesy of the ValleyMLS IDX Database. IDX information is provided exclusively for consumers' personal, non-commercial use and may not be used for any purpose other than to identify prospective properties consumers may be interested in purchasing. Data last updated 2025-11-11T00:27:45.987.
 
https://bt-photos.global.ssl.fastly.net/nalmls/1280_boomver_2_21900923-2.jpg https://bt-photos.global.ssl.fastly.net/nalmls/1280_boomver_2_21900923-2.jpg https://bt-photos.global.ssl.fastly.net/nalmls/1280_boomver_2_21900923-2.jpg
Logo
Blueprint Realty Company
1974 Chandalar Drive, Suite E
Pelham AL, 35214